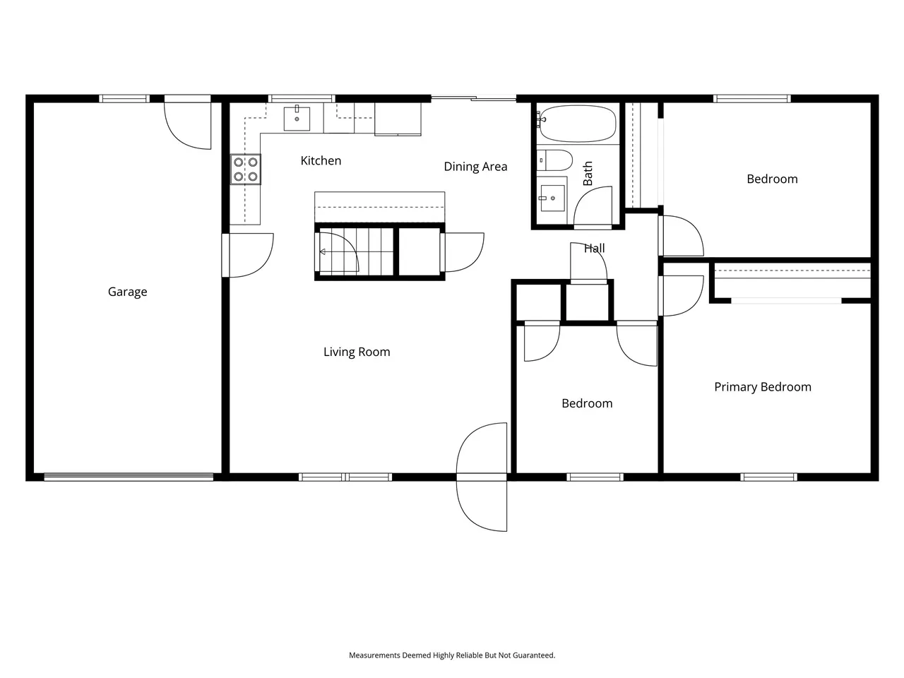
Updated 3BR, 2BA home with finished basement, fenced yard & garage in Lone Tree! Nearly 2,000 sq ft of living space with a full basement that includes a full bath, perfect for a second living area, guest suite or home office. Main level features newer flooring, vinyl replacement windows (including newer living room & basement windows) and all appliances stay, including a nearly new dishwasher. Upstairs bath recently remodeled with new vanity, mirror, custom shelving, lighting & hardware. New interior doors, trim, switches & covers throughout. Finished basement includes separate water heater for shower/bath, lift pit for plumbing access, and newer sump pump system (previous flooding issue professionally addressed & monitored). Exterior offers a fully fenced backyard, double-level deck, gravel parking pad next to garage, brand-new garage door and low-maintenance metal roof. Excellent condition, tons of updates and move-in ready, this home offers outstanding value with easy access to Iowa City, Coralville & surrounding communities. Subject to seller finding a place to live. Sellers is offering a 1-year home warranty; buyer may use HSA funds for eligible payment.
Residential Sale
112 Mapel Dr
Lone Tree, Iowa 52755
Information on this page deemed reliable, but not guaranteed to be accurate. Listing information was entered by the listing agent and provided by ICAAR (Iowa City Area Association of REALTORS®) MLS and CRAAR (Cedar Rapids Area Association of REALTORS®) MLS. Urban Acres claims no responsibility for any misinformation, typographical errors, or misprints displayed from the MLS sources.
Have a question we can answer this property? Interesting in scheduling a showing? Please enter your preferences in the form. We will contact you in order to schedule an appointment to view this property.
View Similar Listings
3 beds, 2 bath
SqFt: 1,404
$225,000
905 Twilight Dr
North Liberty, Iowa 52317
3 beds, 2 bath
SqFt: 1,597
$265,000
750 E Foster Rd
Iowa City, Iowa 52245
3 beds, 2 bath
SqFt: 1,560
$235,000
70 Heidi Ln.
North Liberty, Iowa 52317
3 beds, 2 bath
SqFt: 1,448
$225,000
1829 Gryn Dr
Iowa City, Iowa 52246
3 beds, 2 bath
SqFt: 1,560
$234,000
90 Heidi Ln.
North Liberty, Iowa 52317
3 beds, 2 bath
SqFt: 1,690
$205,000
1515 Spruce St.
Iowa City, Iowa 52240
3 beds, 2 bath
SqFt: 1,520
$225,000
60 David Lee Ct
North Liberty, Iowa 52317
3 beds, 2 bath
SqFt: 1,404
$225,000
940 Twilight Dr
North Liberty, Iowa 52317









