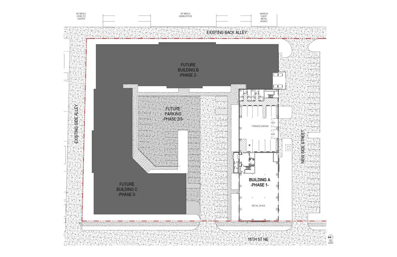
BRAND NEW MIXED USE DEVELOPMENT know as The Hub, in the heart of the Mt. Mercy University and Coe College District has shell space For Lease. Good fit for office, retail and service based business. The Hub is conveniently located in a bustling neighborhood with restaurants, grocery stores, and other service-based tenants, with easy access to I-380. Along with commercial business, the development will feature 186 market rate apartment units for rent. Tenant Improvement Allowance: $10 PSF. Minimum square feet for lease: 2,842. Maximum Contiguous Square Feet For Lease: 5,685.
Commercial Lease
916 NE 16th Street Unit 100
Cedar Rapids, Iowa 52402
Information on this page deemed reliable, but not guaranteed to be accurate. Listing information was entered by the listing agent and provided by ICAAR (Iowa City Area Association of REALTORS®) MLS and CRAAR (Cedar Rapids Area Association of REALTORS®) MLS. Urban Acres claims no responsibility for any misinformation, typographical errors, or misprints displayed from the MLS sources.
Have a question we can answer this property? Interesting in scheduling a showing? Please enter your preferences in the form. We will contact you in order to schedule an appointment to view this property.









