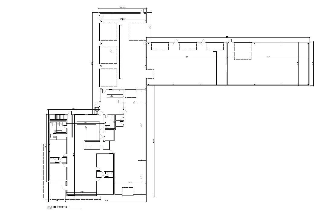
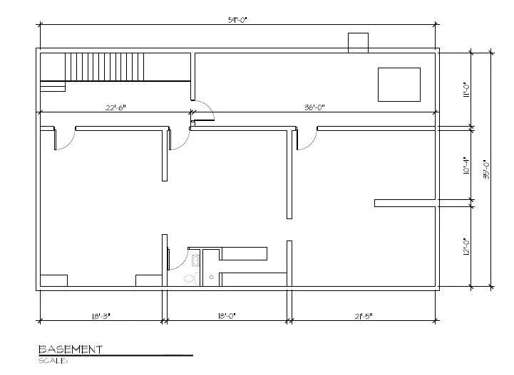
For sale and for lease opportunity on southwest side of Cedar Rapids with frontage on 6th Street SW, featuring 5,500 SF Office/Showroom space and 11,000 SF warehouse space. Additional SF in basement. Equipped with eight 16′ x 16′ OHDs, one 12′ x 12′ OHD. Over 0.5 acres of fenced outdoor storage. 2702 is for sale only. 2710 is for lease and for sale.
Commercial Sale
2710 SW 6th Street
Cedar Rapids, Iowa 52404
Information on this page deemed reliable, but not guaranteed to be accurate. Listing information was entered by the listing agent and provided by ICAAR (Iowa City Area Association of REALTORS®) MLS and CRAAR (Cedar Rapids Area Association of REALTORS®) MLS. Urban Acres claims no responsibility for any misinformation, typographical errors, or misprints displayed from the MLS sources.
Have a question we can answer this property? Interesting in scheduling a showing? Please enter your preferences in the form. We will contact you in order to schedule an appointment to view this property.


