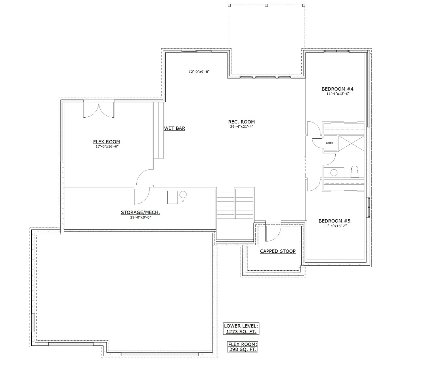
Experience elevated living in this thoughtfully designed home, currently under construction in Swisher’s newest development and located within the award-winning College Community School District. Offering over 3,200 square feet of beautifully finished space, a zero-entry entrance, and an impressive three-stall garage, this home is designed for both comfort and style. Step inside to an open, light-filled main level where expansive windows create a bright and inviting atmosphere. At the heart of the home, the gourmet kitchen is designed to impress and function effortlessly, complete with a spacious walk-in pantry. Just beyond, spend your mornings or relaxing evenings in the screened-in porch that extends your living space outdoors. The main-level primary suite offers a private retreat with a tiled shower, double sinks, and an expansive walk-in closet, while two additional bedrooms on this level each include walk-in closets. The walkout lower level is equally well-appointed, featuring two additional bedrooms, a full bath, and an expansive recreation room with a wet bar—perfect for entertaining. Abundant storage throughout completes this exceptional home, while the thoughtful layout and upscale finishes create a seamless balance of elegance and everyday livability, all in the perfect central location—just 15 minutes from the heart of Cedar Rapids and under 30 minutes from Iowa City.
Residential Sale
240 Howard Avenue NW
Swisher, Iowa 52338
Information on this page deemed reliable, but not guaranteed to be accurate. Listing information was entered by the listing agent and provided by ICAAR (Iowa City Area Association of REALTORS®) MLS and CRAAR (Cedar Rapids Area Association of REALTORS®) MLS. Urban Acres claims no responsibility for any misinformation, typographical errors, or misprints displayed from the MLS sources.
Have a question we can answer this property? Interesting in scheduling a showing? Please enter your preferences in the form. We will contact you in order to schedule an appointment to view this property.
View Similar Listings
5 beds, 4 bath
SqFt: 3,424
$836,900
1204 Timber Trail
Solon, Iowa 52333
5 beds, 4 bath
SqFt: 3,285
$849,000
4218 Pleasant Valley Dr SE
Iowa City, Iowa 52240
5 beds, 4 bath
SqFt: 3,397
$850,000
604 Rock Ridge Rd
Tiffin, Iowa 52340
5 beds, 4 bath
SqFt: 3,311
$875,000
1445 Salm Drive
North Liberty, Iowa 52317
5 beds, 4 bath
SqFt: 3,500
$894,000
702 Lakeview Ct
Tiffin, Iowa 52340
5 beds, 4 bath
SqFt: 3,424
$899,000
837 Heron Dr
Iowa City, Iowa 52245
5 beds, 4 bath
SqFt: 4,044
$899,000
3115 143rd Ln
Riverside, Iowa 52327







