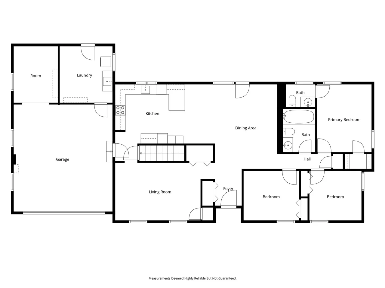
Updated, move-in ready and ideally located on the east side of Iowa City, this nicely updated 3-bedroom, 2-bath ranch blends comfort, style, and practicality. Situated on a level lot with a fully fenced yard, there’s room to relax, garden, or let pets and play roam freely. Inside, you’ll find maple veneer flooring, new carpet and VCT, updated lighting, fresh paint, select new windows, and some updated appliances. The refreshed kitchen features new cabinetry and countertops, offering modern appeal and functional workspace at the heart of the home. Accepted Offer – Backup Offers Welcome Major improvements provide peace of mind, including exterior painting and a new electrical panel with added sub panel. The unfinished lower level is a blank slate ready for your vision — perfect for adding a family room, office, gym, or additional bedroom to expand finished square footage and build equity. Flexible laundry options include hookups in the basement or a main-floor laundry room off the garage. A workshop addition at the rear of the garage adds valuable space for hobbies or storage. A solid, updated ranch with room to grow — don’t miss it.
Residential Sale
205 Dartmouth St
Iowa City, Iowa 52245
Information on this page deemed reliable, but not guaranteed to be accurate. Listing information was entered by the listing agent and provided by ICAAR (Iowa City Area Association of REALTORS®) MLS and CRAAR (Cedar Rapids Area Association of REALTORS®) MLS. Urban Acres claims no responsibility for any misinformation, typographical errors, or misprints displayed from the MLS sources.
Have a question we can answer this property? Interesting in scheduling a showing? Please enter your preferences in the form. We will contact you in order to schedule an appointment to view this property.
View Similar Listings
3 beds, 2 bath
SqFt: 1,796
$319,900
819 14th Ave
Coralville, Iowa 52241
3 beds, 2 bath
SqFt: 1,845
$315,000
230 W Chestnut St
North Liberty, Iowa 52317
3 beds, 2 bath
SqFt: 1,444
$289,900
220 Summerhays St
Tiffin, Iowa 52340
3 beds, 2 bath
SqFt: 1,649
$279,900
1943 Plaen View Dr
Iowa City, Iowa 52246
3 beds, 2 bath
SqFt: 1,740
$280,000
255 Juniper Ct
North Liberty, Iowa 52317
3 beds, 2 bath
SqFt: 1,700
$315,000
1854 Friendship St
Iowa City, Iowa 52245
3 beds, 2 bath
SqFt: 1,358
$350,000
1485 Walker Way
Coralville, Iowa 52241
3 beds, 2 bath
SqFt: 1,656
$324,900
40 Greenview Dr
West Branch, Iowa 52358









