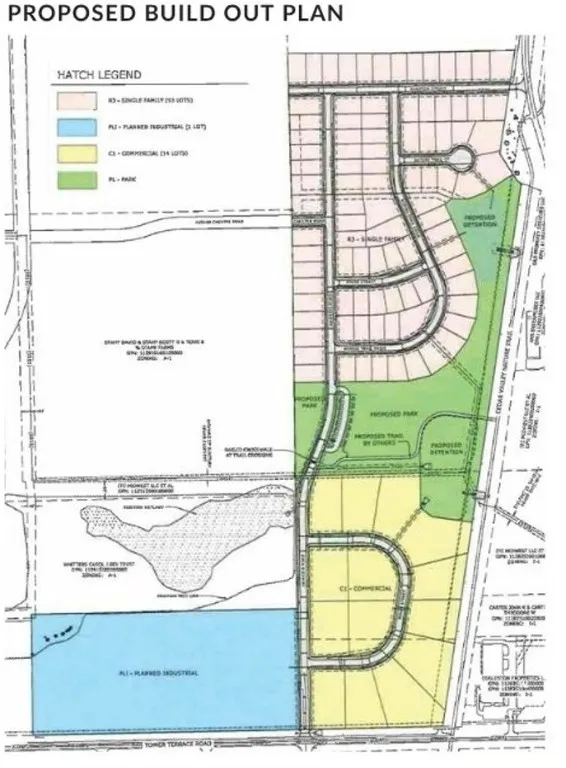
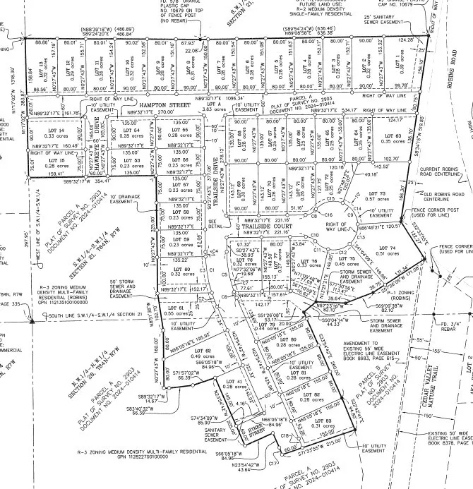
Introducing Robins Landing, the newest residential and planned walk ability lifestyle development in Robins, Iowa. Located along the Cedar Valley Nature Trail, with access from Tower Terrace Road and Robins Road. Plans for an approximate 16 acre Robins Landing Park is planned with the City Parks and Recreation department. The park and Cedar Valley Nature Trail will also have access to South Troy Park including the baseball and softball fields. This Planned Development will host retail that can utilize the trail and walking ability to housing. You may select your builder and timeline for construction. Standard and egress building sites, Cedar Rapids water, Robins sewer, USA Communications fiber and internet, Mid American gas, private trash, and within the development electric is REC or Alliant. Please confirm pending on the lot number. Harding, Hiawatha, Kennedy School District. 1,350 sq ft ranch minimum, 1,850 multi-level sq ft minimum. 0.3 Miles to Main Street in Robins, 2 Miles to County Home Rd, 2 Miles to I380. Immediate possession. $100 annual HOA fee, $100 start up fee.
Farm Sale
2900 Hawkeye Drive
Robins, Iowa 52328
Information on this page deemed reliable, but not guaranteed to be accurate. Listing information was entered by the listing agent and provided by ICAAR (Iowa City Area Association of REALTORS®) MLS and CRAAR (Cedar Rapids Area Association of REALTORS®) MLS. Urban Acres claims no responsibility for any misinformation, typographical errors, or misprints displayed from the MLS sources.
Have a question we can answer this property? Interesting in scheduling a showing? Please enter your preferences in the form. We will contact you in order to schedule an appointment to view this property.
View Similar Listings
$69,900
Lot 17 The Meadows Subdivision Part 5
West Branch, Iowa 52358
$94,900
Lot 19 Meadows Subdivision Part 6
West Branch, Iowa 52358
$111,900
Lot 32 Deer Valley Subdivision Part 4
Ely, Iowa 52227
$101,900
Lot 34 Deer Valley Subdivision Part 4
Ely, Iowa 52227
$111,900
Lot 33 Deer Valley Subdivision Part 4
Ely, Iowa 52227
$99,000
Lot 35 Deer Valley Subdivision Part 4
Ely, Iowa 52227








