Description

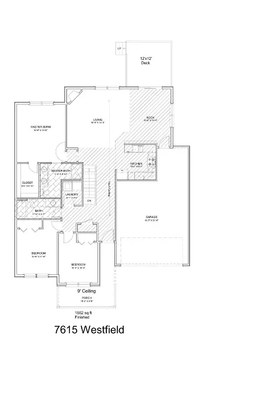
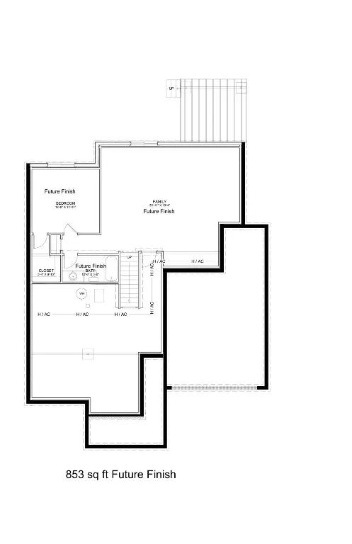
This is Abode Construction’s Somerset plan featuring a split bedroom plan, with a primary bedroom suite that includes a bath with double vanity and a walk-in closet; 2 additional bedrooms; main floor laundry room; another full bathroom; and an open great room/kitchen/dining space. The kitchen offers an island with breakfast bar and a dining area that opens to the back deck. Additional featured selections for this home include 2-stall garage and gas fireplace with stone wall and floating mantle. This building has a passive radon system installed. The lower level could be finished to include a full bath, an additional bedroom, and spacious family room, while still leaving plenty of unfinished storage space. Majority of construction completed in 2023.

Listing ID #2408619

Residential For Sale

7615 Westfield Drive NE
Cedar Rapids, Iowa 52402

$349,900
Beds3
Total Baths2
Square Feet1,552
Construction Year2022
Lot Size0.28 Acre
Country : US
State : IA
County : Linn
City : Cedar Rapids
Zipcode : 52402
Status CategoryPending
Virtual Tour: View Tour
Listing Agent
Mindy Martin
SKOGMAN REALTY
Mortgage Calculator
$
$ %
years
%
$ %per year
$ %per year

Features
2408619
Residential
3
2
1,552 Sqft
2022
Attached, Garage, Garage Door Opener
Full, Concrete
Frame, Vinyl Siding, Stone
Yes
C Ave NE or Council St to 74th St to Westfield Drive NE
Additional Details
0.28 Acre
Central Air
Forced Air, Gas
Bath in Primary Bedroom, Breakfast Bar, Kitchen/Dining Combo, Main Level Primary, Vaulted Ceiling(s)
01-01-2025
76 x 162

Information on this page deemed reliable, but not guaranteed to be accurate. Listing information was entered by the listing agent and provided by ICAAR (Iowa City Area Association of REALTORS®) MLS and CRAAR (Cedar Rapids Area Association of REALTORS®) MLS. Urban Acres claims no responsibility for any misinformation, typographical errors, or misprints displayed from the MLS sources.

Request a Showing

Have a question we can answer this property? Interesting in scheduling a showing? Please enter your preferences in the form. We will contact you in order to schedule an appointment to view this property.

View Similar Listings

Property